PROCESSES
Right System Design
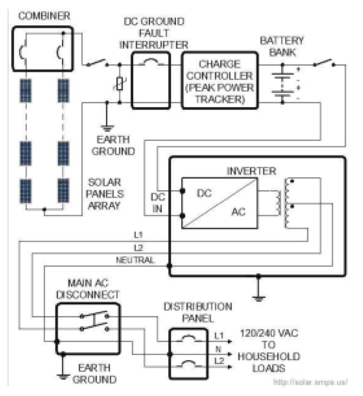
Inputs From Site Survey
- Pv Module Should Be Ideally South Facing
- Inclination Ov Modules Matches The Latitude Of The Location
- Clearly Map Shadow Free Areas On Roof
- Identify Dc And Ac Cable Routing
- Confirm Termination Point In Lt Panel
- Clarify Local Netmetering Policy Of Discom
- Copy Of Electricity Bill
Array Layout & System Sizing
- Select Best Orientation & Angle Of Inclination For Pv Modules
- Place And Align Pv Panels So As To Minimise Any Impact Of Shadowing
- Use The Most Suitable Mms As Per Roof & Location Of Site

Inverter Placement, Walkways,
Pipelines & Cable Routing
Define Location Of Inverter / Acdb And Plan Most Optimized Cable Routing
Leave Required Space For Walkways / Water Pipelines For Ease Of Maintenance
Define Location Of Inverter / Acdb And Plan Most Optimized Cable Routing
Module Mounting Structure (Mms)
Electrical Design
- Help Determine The Correct Specification For Acdb
- Gives A Quick Overview Of The System Design, Electrical
Interconnection And Termination At Site
- Understand The Viaibilty Of Zero Export Or On Grid Sharing
Remote Monitoring System
All solar systems we install come with Remote Monitoring System that allows us and you the customer to know the performance of the plant on a real-time basis.